项目编号:YKYGK2025007
一、设备需求
加压氢化反应釜设备2套,包含0.5L和3L主机设备各1套、配套附件及合格证书等,制造必须遵循《钢制压力容器》GB150-2011、《钢制压力容器制造技术要求》HG/T20584-2011、《固定式压力容器安全技术监察规程》TSG 21-2016等规范及检验数据。
1.1货物必须为合格产品,质量不得低于国内一线品牌质量并达到国家相关标准、行业标准、地方标准或者其他标准、规范,中标人供货时应当提供有关货物的合格证明材料等。
1.2投标人应保证货物是全新、未使用过的合格产品,并完全符合合同规定的质量、规格和性能的要求。
1.3中标人应保证所提供的货物经正确安装、正常运转和保养后,在其使用寿命期内应具有满意的性能。在货物质量保证期内卖方应对由于设计、工艺或者材料的缺陷而发生的任何不足或者故障负责。
1.4所投产品应提供详细的技术资料。
1.5设备质保不低于3年,并负责设备终身维修,具体详见三、相关服务要求。
二、性能参数要求
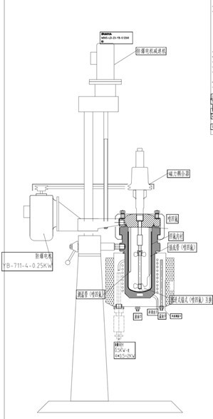
(一)0.5L加压氢化反应釜参数要求:
1.工作压力≤ 10MPa;设计压力≥ 12 MPa;
2.工作温度≥ 250℃;设计温度≥300 ℃ ;
3.要受压元件材料不锈钢 316L;
4.腐蚀裕量≥ 0.5mm;
5.全容积≥0.5L;
6.耐压试验:液压试验压力≥ 10 MPa(釜体);
7.泄露试验:气密性试验压力≥10 MPa(釜体);
8.电动机:EXDIIBT4(等级);≤120W(功率);
9.搅拌器:推进式搅拌桨(型式)、0-1000r/min(转速);
10.设计使用年限不少于10年。
11.技术要求:
11.1焊接采用手工电弧焊和埋弧自动焊。
11.2焊接按HG7120583-2011中的规定,其余角焊缝焊高度按较薄板的厚度;法兰的焊接按相应反拉标准中的规定。
11.3设备内同与物料接触表面进行抛光处理。
11.4设备制作完毕后,按照要求进行耐压试验,实验水中氯离子含量小于25ppm,实验完毕且合格后,应立即将内外表面的水渍吹除干净,之后进行气密性试验。
11.5进行必要的防爆以及防腐蚀处理,使其符合国家及省市相关规范要求。
12.釜盖要求:

13.结构要求:

(二)3L加压氢化反应釜参数要求
1.工作压力≤ 10MPa;设计压力≥ 12 MPa ;
2.工作温度≥ 250℃;设计温度≥300 ℃ ;
3.要受压元件材料不锈钢 316L;
4.腐蚀裕量≥ 0.5mm;
5.全容积≥3L;
6.耐压试验:液压试验压力≥ 10 MPa(釜体);
7.泄露试验:气密性试验压力≥10 MPa(釜体);
8.电动机:EXDIIBT4(等级);≤250W(功率);
9.搅拌器:推进式搅拌桨(型式);0-750r/min(转速可调)
10.设计使用年限不少于10年。
11.技术要求:
11.1焊接采用手工电弧焊和埋弧自动焊。
11.2焊接按HG7120583-2011中的规定,其余角焊缝焊高度按较薄板的厚度;法兰的焊接按相应反拉标准中的规定。
11.3设备内同与物料接触表面进行抛光处理。
11.4设备制作完毕后,按照要求进行耐压试验,实验水中氯离子含量小于25ppm,实验完毕且合格后,应立即将内外表面的水渍吹除干净,之后进行气密性试验。
11.5进行必要的防爆以及防腐蚀处理,使其符合国家及省市相关规范要求。
12.釜盖要求:

13.结构要求:

(三)货期要求:合同签订之日起50天内供货并完成安装。
三、相关服务要求
1、设备到达指定地点且接到采购人通知后,供应商须安排生产厂家提供现场安装调试。供应商须对安装和调试的正确性负责,直至设备正常运行,安装和调试的费用包括在投标价格内。
2、设备安装后,应按国际标准和厂家标准进行质量验收。供应商应向采购人提供验收标准、验收手册和验收工具,并承担相关费用。如需要进行计量检定,费用由供应商承担。
3、供应商须负责对采购人相关人员进行免费技术培训,直至能够熟练掌握为止。培训内容包括:设备的基本操作、日常维护等。培训人数由采购人确定,培训资料由供应商免费提供。
4、质量保证期(免费保修期):设备最终验收合格后质保不低于3年,自最终验收报告签署之日起算。在质保期内如因设备故障(非人为故障)导致不能使用时,供方免费提供一切必要的维修服务。质保期外供应商应以最优的零配件费用提供,并应长期提供要求的设备零件供应。
5、维护响应时间:接到报修通知后2小时内响应,根据情况8-24小时到达现场并修复。
6、提供软件终身免费升级。
7、负责设备终身维修。
四、付款方式
1、合同签订后10个工作日内,采购人向供应商支付合同金额的30%作为预付款,全部货物安装调试合格并经采购人验收合格后支付合同金额的70%。
2、供应商向采购人开具合规的13%增值税专用发票。
3、投标价即为总报价,包含但不限于设备费、配件费、运输费、安装费、调试费、验证费、税费等。
五、供应商要求
1、投标人应为经工商行政管理部门登记注册的并具有相应制造、经营权资格证明的独立企业法人;
2、投标人投标时需提供本人身份证、营业执照(正、副本均可)等相关资质证明复印件(须加盖单位公章)扫描件;
3、投标方需提供生产商的授权委托书原件;
4、企业法人营业执照的经营范围应符合招标条件的要求,所投产品必须具备行业相关认证,符合国家和行业标准;
5、投标人应遵守有关的国家法律法规和条例:具有独立承担民事责任的能力;具有良好的商业信誉和健全的财务会计制度,能够提供持续财务业绩的公开证据;具有履行合同所必须的设备和专业技术能力;参加本次采购活动前三年内,在经营活动中没有重大违法记录。
6、本项目不接受联合体投标。
六、资料要求
本项目投标为电子标书,无需提交纸质版。请参与投标单位将下列资料(盖单位公章)彩色扫描合成1个PDF版本的投标文件,文件按“投标单位名称+项目名称”署名后,发送至邮箱:caigou@sdaps.cn,投标文件资料内容包括但不限于以下内容:
1、投标产品介绍及性能参数、技术偏离表
2、报价一览表、配置清单、供货周期
3、售后承诺书
4、供应商基本概况及相关资质(包括:主营业务、地址、面积、组织架构、人员组成,质量体系、上一年度财务状况及市场占有率等)
5、生产厂商授权文件原件
6、项目投标人联系方式及法人授权文件原件
7、投标人认为需要提交的其他材料
七、联系方式
联系人:曹老师
联系电话:0531-88011924
截止日期:2025年09月29日17:00